
Team: Felix Rohde, Lars Plichta
Betreuer: Prof. M. Thesing
Dortmund Derne 2008
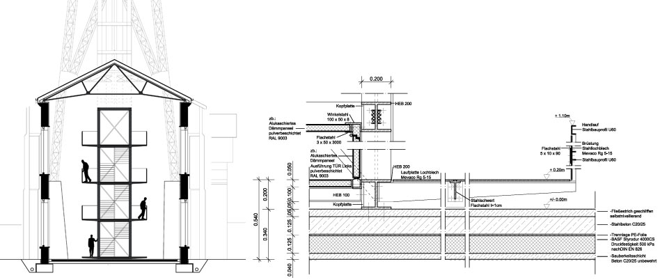
Grundlage der Entwurfsaufgabe war das alte Schachtgebäude der Zeche Gneisenau aus dem Jahr 1885. Es sollte einen Nutzung als Showrom für neue Manufakturen aufnehmen können. Das Entwurfskonzept basiert auf einer völligen Entkernung des Innenraumes. Lediglich der historische Schachtturm und die Stahlbinder des Daches werden belassen. Die äußere Hülle wird in weiten Teilen erhalten und Instand gesetzt. Als neues prägendes Element im Innenraum wird ein Stahlregal eingestellt, welches sich in Materialität und Struktur an die Bestandsträger und den Schachtturm anlehnt. Boden, Wände und Decken werden komplett in Weiss gehalten. Das Stahlregal beinhaltet alle dienenden Funktionen, Erschließungen und Ausstellungsflächen.