Showroom & Schulungsgebäude für rp-Technik

Team: Felix Rohde
Betreuer: Prof. H.- J. Reichardt

Bönen 2009

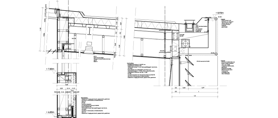
Für die Firma rp- Technik sollte ein Showroom mit Schulungsräumen geplant werden. Besonderes Augenmerk wurde auf die corporate identity des Unternehmens und auf die Lichtplanung gelegt. Um die Fernwirkung zur nahe gelegenen A2 und die Hinführung zum Gebäude über das Grundstück zu realisieren, dient eine langgezogene Ebene als Grundlage. Auf diese wurden das Gebäude, eine Werbefläche als Startpunkt und eine Leinwand als Endpunkt aufgesetzt. Integrierte Wasserbecken und die konsequente Beleuchtung vervollständigen das Gesamtensemble. Das Gebäude ist als „Röhre“ konzipiert, in welche die Funktionen als Boxen hineingestellt werden. Im unteren Teil befindet sich ein offener Raum für Präsentationsaufgaben und sowie Aufenthaltsflächen. Die Schulungsräume werden von der Decke abgehängt. Dadurch ist von jeder Position auf der Ebene einen Blick zum anderen Ende möglich. Das Material Stahl in Form eines Fassadennetzes, die großen Glasfassaden im RP-eigenen Bausystem, sowie die nächtliche Beleuchtung in den ci-Farben, erzeugen eine gute Fernwirkung, die die corporate identity darlegt.